

室內設計裝修工程、CAD繪圖、機械圖繪製收費標準 The charges for project.
茲因甲方委託乙方設計及施工地址於 。
設計費每坪新台幣 4500~6000 元整,室內面積計 坪,戶外面積計 坪,共計新台幣(NT$) 整。
雙方同意訂定合約條款如下,以資互相遵守。
一、設計費付款方式:
正式設計合約簽訂
1. 現場丈量、放樣。
2. 平面規劃提案 (每案2萬元並以20坪為基數,不足者以20坪計入) :
室內外空間規劃設計提供所需的空間風格選擇確定、細部設計、建材資訊、家具及色彩計畫、擬定總工程詳細預算書(含數量、單價、總價)、工程進度表排定之建議。
3. 正式設計合約簽訂(設計費以一坪4500~6000元計算並將先前所支付之提案費用抵扣)。
4. 繪製正式圖樣 : 平面配置圖、立面裝修圖、剖面圖、各項相關系統配置圖、各部詳細施工大樣圖說。
(照明系統、空調系統、消防水電系統、弱電通訊系統等相關設備之規劃配置,並與各項專業人員商洽設計施工上之問題。)
二、工程施工費付款方式:
正式工程合約簽訂 (甲、乙,二方簽約 : 甲為業主(發案方)、乙為設計監造單位(承攬方)、以及設計單位與各工種施工工種負責人(承包方)擬訂另一份廠商承包合約書
工程承攬合約書
立合約書人:業主 公司(以下稱甲方) 承包商 公司 (以下稱乙方)
茲因乙方承包甲方 工程,雙方同意訂定合約條款如下,以資互相遵守:
一、 工程位置 :本件工程座落於 縣市 鄉鎮市區 路街 段 巷 弄 號 樓
二、 工程圖說明:乙方應按經甲方認可之設計圖說規格切實施工。(圖說如附件)
三、 工程材料 :本工程須按設計圖及施工說明書中所註明之材料施工,甲方得隨時派人監工。
四、 施工期限:自民國 年 月 日起至民國 年 月 日止, 共計 工作天。
五、工程總價:新台幣 元整。
六、付款辦法:
(1)本契約訂定之日給付 工程總價30%計,應付金額:新台幣(NT$) 元整。付款人簽章: ;收款人簽章: 。
(2)工程完成四成時給付 工程總價40%計,應付金額:新台幣(NT$) 元整。付款人簽章: ;收款人簽章: 。
(3)工程完成八成時給付 工程總價25%計,應付金額:新台幣(NT$) 元整。付款人簽章: ;收款人簽章: 。
(4)工程完成驗收後付清 工程尾款。工程總價5%計,應付金額:新台幣(NT$) 元整。付款人簽章: ;收款人簽章: 。
(5)付款方式以匯款付之。
(6)上列四項付款期限如甲方故意遲延給付時,乙方對以後工程得自動停止進行。其停止期間不計入第四條之施工期限內。
七、工程變更:
甲方認為本工程其中部份有變更之必要時,得通知乙方辦理,因工程變更而有數量之增減時,其工程費之計算,
仍以估價單內所 列單價為準,如有新增項目,應由雙方共同議定合理之單價。是 項增減工程價款及付款方式經雙方議定後,用書面附入本合約內 作為附件。
八、工程意外:
(1) 本工程進行中因乙方之疏忽及過失,以致損害他人之身體或財產時,乙 方應付賠償責任。但因不可抗力之損失者不在此限。
(2) 施工期間如遇天災地變等非人為因素之變故,亦不在此限。
九、工程配合:本工程由甲方供給之材料或他包之配合工程,如未能按期供應或 未能按期施工,致使乙方之工程進度滯緩時,得依遲緩日數延長 本工程施工期限。
十、工程驗收:工程完成後,甲方應於三天內驗收完畢,不得拖延。 本契約壹式貳份,由甲乙雙方各執乙份為憑。
如有未盡事宜,雙方以誠實合理商獲協議以書面補充之。
附加條款 :
1. 負責說明解決各協力單位對於設計圖說、工程進度調配進場時間之各項疑問,並協助業主對承包工程單位之施工品質之顧問。
2. 協助辦理完工驗收作業。
業主(即甲方)
公司名稱: (公司章)
代表人: (私章)
統一編號:
地址:
電話:
承包商(即乙方)
公司名稱: (公司章)
代表人: (私章)
統一編號:
地址:
電話:
電子信箱:
中 華 民 國 年 月 日
注意:內文為依據當時法律所得之見解,法條的引用,可能因法條異動而不同。另一方面內文 不得當成任何解說或其他解釋,若需引用該內文時,請務必在事前向專業律師做求證工作。
三、本契約一式二份,各由甲方、乙方、另外各工種廠商承包各執一份存照。





























AUTOCAD平面繪圖收費標準
一、
2D CAD室內設計工程平面繪圖 單張850~1200元起、機械零件圖、施工大樣圖650~850元起
(全項皆依複雜度及所需標準時間計費,含電子檔、不限地區)
現場放樣建立電子檔,20坪以下為900元起,20坪以上為1000~1500元起(渲染另收10000元起),高雄市以外地區者另加收車馬費(實報實銷),輸出費另計。
長期配合者可簽署合約議價
二、
3D立體建模貼材質,20坪以下900元起,20坪以上為1700~2000元起,建立電子檔及轉視角圖面,每項提出三面視角,
如需多加視角,每一視角以500元起收費,轉入影片則以1500起計費,輸出費另計。
長期配合者可簽署合約議價
商業設計收費標準
一、
單一物件合成及去背單張990起(依複雜度計費,如細微髮絲、物件數量部份等..較花時間)
設計單張活動宣傳海報圖1600元起。
二、
名片設計單面1200元起,雙面名片設計1800元起(形象LOGO設計另收5000~8000元),印刷輸出另計。
(非一般套印式)
三、
喜帖邀請卡單面設計1000元起,雙面1500元起,印刷輸出另計。(非一般套印式)
長期配合者可簽署合約議價
特殊轉檔者,需特別告知,如有其它相關設計,歡迎留言或來信告知,感謝您。


HOUSE-T
3DS MAX,參照上圖,無尺寸比例下模擬建立模型後渲染-2007
室內設計是一門實用藝術
它需要設計師對周邊環境、空間規劃、色彩搭配、光影應用、
居家擺設、軟件配飾等各個環節進行深入的思考,得出合理的設計。
美感是設計的靈魂,而好的設計是藝術美與實用性的高度結合,
“以人為本”滿足業主需求的設計才是最好的設計(量身訂作)。
An aesthetic sence is often the soul of a design.
But in a deep sense,a perfect design is the highly combination of the artistic beauty and practical applicability.
Only the “People-Oriented” design,which satisfies the coustomers’need is the best.
我們應該要有良好的美學修養,積極創新能力,還要有國際化的視野。
We should have good aesthetic accomplishments,positive creative abilities and international field of views as well.
藝術+設計+娛樂+居家=生活融合
對家庭生活空間而言,燈光品質和舒適度是很重要的
The family living areas are strategically situated for light to provide quality and comfort.

SU+VR
AUTOCAD 2007


--------------------------------------------------------------------------------------
| 書籍編輯設計 Indesign . |
![]() |
![]() |
![]() |
![]() |
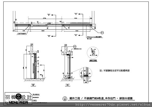
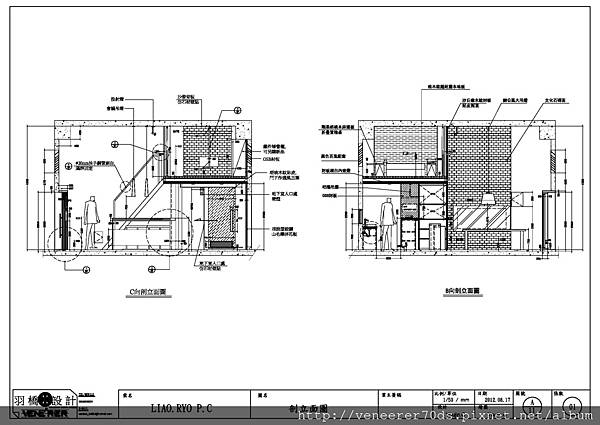
| 室內設計&施工工法..3D建模 |
![]() |
![]() |
![]() |
![]() |
![]() |
![]() |
![]() |
![]() |
![]() |
![]() |
![]() |
| 名片設計 |
![]() |
![]() |
![]() |
![]() |
![]() |
![]() |
![]() |
![]() |
![]() |
![]() |
![]() |
![]() |
| 平面商業設計 |
![]() |
![]() |
![]() |
![]() |
![]() |
![]() |
![]() |
![]() |
![]() |
![]() |
![]() |
| 機械製圖 |
|





























































留言列表
設計獎項
{{ article.title }}
